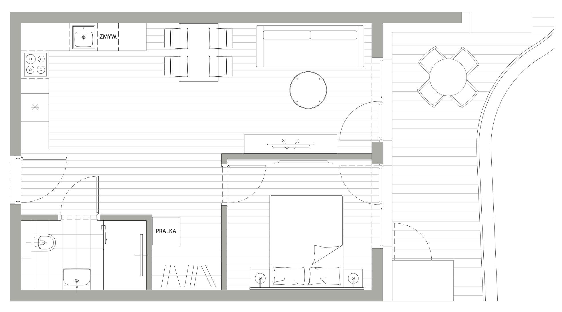
Pokoje i umiejscowienie
Apartament na 3 piętrze
PRZEDPOKÓJ 3,96 m2
ŁAZIENKA 3,92 m2
POKÓJ DZIENNY + KUCHNIA 25,09 m2
SYPIALNIA8,62 m2
BALKON 12,01 m2
Piętro
Powierzchnia, m2
sypialnie
pokoje
balkon, m2
W STANDARDZIE „POD KLUCZ"
czyli gotowe by w nich zamieszkać
W mieszkaniach wykonano wszystkie najważniejsze prace wykończeniowe. Wystarczy, że przewieziesz meble, zadbasz o niezbędne dodatki i akcesoria, a będziesz mógł zacząć korzystać z dostępnej przestrzeni. Do tego, jeśli dokonasz zmian aranżacyjnych, Twoja nieruchomość zyska indywidualny charakter. Nie jesteś więc skazany na powielanie tego samego układu i standardowych rozwiązań. To zaledwie baza, którą możesz wykorzystać do tego, aby stworzyć wygodną dla Ciebie przestrzeń.
